【計画中】株式会社CWM総合経営研究所東松山支社新社屋計画
Project Date
用途:事務所
建築:UENOA architects
構造:村田龍馬設計所
設備:EOSplus
施工:伊田テクノス
敷地面積:324.20m²
延床面積:289.20m²
階数:地上2階
構造:木造(CLTパネル工法+木造軸組工法)
竣工:2026年4月末(予定)
写真:UENOA
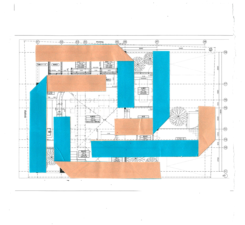
埼玉県東松山市に建つ会計事務所の支社建替計画である。クライアントの要望は、創業の地であるこの街への敬意を示しつつ、社員が一体感を持って働ける環境をつくることにあった。前作《YUKIoffice》に続き、本計画でも「閉じない線」で建築をつくることを試みている。敷地内には5枚のL型壁を配置し、それらの壁とは独立してスラブを架け渡している。L型壁によって外形や吹抜に正方形が浮かび上がるような構成とすることで機能から解放された純粋で力強い壁の在り方を考えた。壁にはCLTを用い、吹抜けを貫くように立ち上げることで、圧倒的な木の存在感を表現している。天井にはX字に組まれたリボン状の梁を配置し、ハイサイドライトから差し込む光が時間とともに変化する美しい陰影を生み出すよう計画した。建物の中心にある大きな余白を設け、人や外部環境の気配が交錯することで、賑わいと静けさが共存する多様な居場所をもつ社屋を目指した。














